规划 设计 制造 施工
一 站 式 服 务 提 供 商

集装箱建筑设计指南及30个案例研究(63)

2013年11月8日

罗德岛集装箱办公楼的室内

罗德岛集装箱办公楼的室内

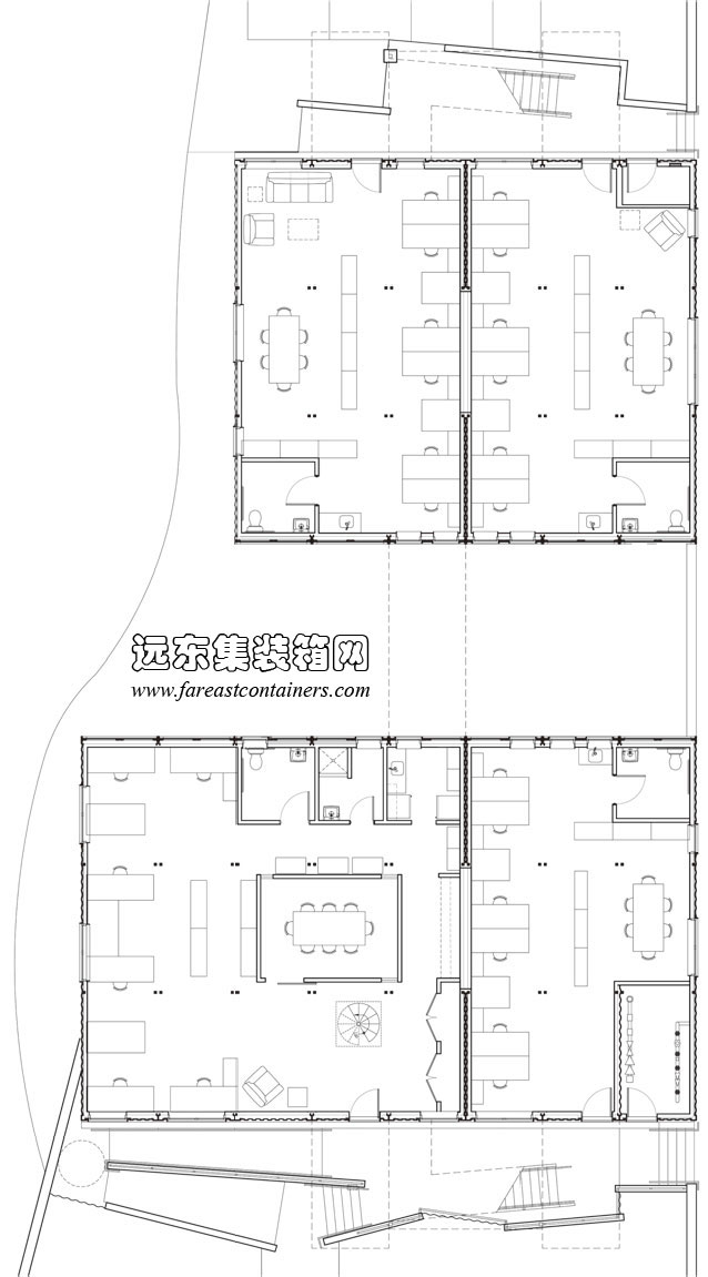
罗德岛集装箱办公楼一层平面图

罗德岛集装箱办公楼一层平面图

罗德岛集装箱办公楼二层平面图

罗德岛集装箱办公楼二层平面图

相关内容:

集装箱建筑设计指南及30个案例研究(1)

集装箱建筑设计指南及30个案例研究(2)

集装箱建筑设计指南及30个案例研究(3)

集装箱建筑设计指南及30个案例研究(4)

集装箱建筑设计指南及30个案例研究(5)

集装箱建筑设计指南及30个案例研究(6)

集装箱建筑设计指南及30个案例研究(7)

集装箱建筑设计指南及30个案例研究(8)

集装箱建筑设计指南及30个案例研究(9)

集装箱建筑设计指南及30个案例研究(10)

集装箱建筑设计指南及30个案例研究(11)

集装箱建筑设计指南及30个案例研究(12)

集装箱建筑设计指南及30个案例研究(13)

集装箱建筑设计指南及30个案例研究(14)

集装箱建筑设计指南及30个案例研究(15)

集装箱建筑设计指南及30个案例研究(16)

集装箱建筑设计指南及30个案例研究(17)

集装箱建筑设计指南及30个案例研究(18)

集装箱建筑设计指南及30个案例研究(19)

集装箱建筑设计指南及30个案例研究(20)

集装箱建筑设计指南及30个案例研究(21)

集装箱建筑设计指南及30个案例研究(22)

集装箱建筑设计指南及30个案例研究(23)

集装箱建筑设计指南及30个案例研究(24)

集装箱建筑设计指南及30个案例研究(25)

集装箱建筑设计指南及30个案例研究(26)

集装箱建筑设计指南及30个案例研究(27)

集装箱建筑设计指南及30个案例研究(28)

集装箱建筑设计指南及30个案例研究(29)

集装箱建筑设计指南及30个案例研究(30)

集装箱建筑设计指南及30个案例研究(31)

集装箱建筑设计指南及30个案例研究(32)

集装箱建筑设计指南及30个案例研究(33)

集装箱建筑设计指南及30个案例研究(34)

集装箱建筑设计指南及30个案例研究(35)

集装箱建筑设计指南及30个案例研究(36)

集装箱建筑设计指南及30个案例研究(37)

集装箱建筑设计指南及30个案例研究(38)

集装箱建筑设计指南及30个案例研究(39)

集装箱建筑设计指南及30个案例研究(40)

集装箱建筑设计指南及30个案例研究(41)

集装箱建筑设计指南及30个案例研究(42)

集装箱建筑设计指南及30个案例研究(43)

集装箱建筑设计指南及30个案例研究(44)

集装箱建筑设计指南及30个案例研究(45)

集装箱建筑设计指南及30个案例研究(46)

集装箱建筑设计指南及30个案例研究(47)

集装箱建筑设计指南及30个案例研究(48)

集装箱建筑设计指南及30个案例研究(49)

集装箱建筑设计指南及30个案例研究(50)

集装箱建筑设计指南及30个案例研究(51)

集装箱建筑设计指南及30个案例研究(52)

集装箱建筑设计指南及30个案例研究(53)

集装箱建筑设计指南及30个案例研究(54)

集装箱建筑设计指南及30个案例研究(55)

集装箱建筑设计指南及30个案例研究(56)

集装箱建筑设计指南及30个案例研究(57)

集装箱建筑设计指南及30个案例研究(58)

集装箱建筑设计指南及30个案例研究(59)

集装箱建筑设计指南及30个案例研究(60)

集装箱建筑设计指南及30个案例研究(61)

集装箱建筑设计指南及30个案例研究(62)

集装箱建筑设计指南及30个案例研究(64)

集装箱建筑设计指南及30个案例研究(65)

集装箱建筑设计指南及30个案例研究(66)

集装箱建筑设计指南及30个案例研究(67)

集装箱建筑设计指南及30个案例研究(68)

集装箱建筑设计指南及30个案例研究(69)

集装箱建筑设计指南及30个案例研究(70)

集装箱建筑设计指南及30个案例研究(71)

集装箱建筑设计指南及30个案例研究(72)

集装箱建筑设计指南及30个案例研究(73)

集装箱建筑设计指南及30个案例研究(74)

集装箱建筑设计指南及30个案例研究(75)

集装箱建筑设计指南及30个案例研究(76)

集装箱建筑设计指南及30个案例研究(77)

集装箱建筑设计指南及30个案例研究(78)

集装箱建筑设计指南及30个案例研究(79)

集装箱建筑设计指南及30个案例研究(80)

集装箱建筑设计指南及30个案例研究(81)

集装箱建筑设计指南及30个案例研究(82)

集装箱建筑设计指南及30个案例研究(83)

集装箱建筑设计指南及30个案例研究(84)

集装箱建筑设计指南及30个案例研究(85)

集装箱建筑设计指南及30个案例研究(86)

集装箱建筑设计指南及30个案例研究(87)

集装箱建筑设计指南及30个案例研究(88)

集装箱建筑设计指南及30个案例研究(89)

集装箱建筑设计指南及30个案例研究(90)

集装箱建筑设计指南及30个案例研究(91)

集装箱建筑设计指南及30个案例研究(92)

集装箱建筑设计指南及30个案例研究(93)

集装箱建筑设计指南及30个案例研究(94)

集装箱建筑设计指南及30个案例研究(完)

查看更多集装箱房屋|集装箱活动房|住人集装箱|集装箱住宅|集装箱建筑|二手集装箱论文文献